Slēgta satiksmes kustība un ierobežota gājēju kustība Eduarda Veidenbauma ielā
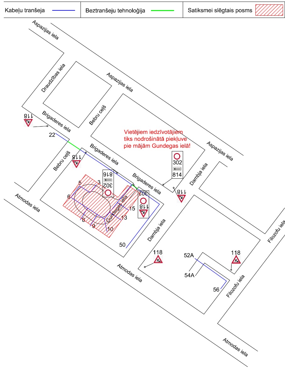
Ierobežota satiksme Dambja ielā, Brigaderes ielā, Filozofu ielā un slēgta satiksme Gundegas ielā
No 27. jūnija līdz 7. novembrim ierobežota satiksme:
- Dambja ielā, posmā no Atmodas ielas līdz Brigaderes ielai,
- Brigaderes ielā, posmā no Dambja ielas līdz Draudzības ielai,
- Filozofu ielā, posmā no Filozofu ielas Nr. 56 līdz Filozofu ielai Nr. 54A.
No 27. jūnija līdz 7. novembrim slēgta satiksme Gundegas ielā no Brigaderes ielas.
Satiksmes ierobežojumi noteikti būvdarbu laikā – TP-1018 “Filozofu iela” Z‐3 gaisvadu līnijas pārbūve 4kV KL, ievērojot saskaņotās Satiksmes organizācijas shēmas.
Informāciju sagatavoja Jelgavas valstspilsētas pašvaldības iestāde “Pilsētsaimniecība”, kontakttālrunis 63048619.
Līdzīgi raksti





